盛岡信通フェア2025に出展します!
こんにちは、ケーブル収納アドバイザーの藤井です。
今年は春から製品展示会とコンクリート勉強会を開催してきました、秋も9月4日5日で仙台と盛岡で開催、
30日は田端で開催、11月には八王子と大宮で開催します。
そう秋は秋でフジプレコンは展示会の秋、毎年恒例の盛岡での信通フェア、2年に1度の幕張メッセでの鉄道技術展、
あっという間に年末の挨拶廻りになりそうな予感。
今回は盛岡での信通フェアについて書きます。
盛岡信号通信フェア2025
1.日時 2025年10月16日(木) 10:00 ~ 17:00
2025年10月17日(金) 9:30 ~ 15:00
2025 年10 月15 日(水) 準備日
2.場所 「いわて県民情報交流センター アイーナ」
7階 アイーナホール/ 8階 804会議室
3.テーマ 『鉄道のミライをデザインする』
「ミライ」については
(1)新しい技術導入の視点~信号通信に新たな技術を取り入れ進化する「ミライ」
(2)鉄道の信号通信部門に携わる皆様一人ひとりが将来的に目指す姿をイメージする「ミライ」
の二つを重ね合わせ、思いを込めた内容となっています。
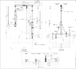
フジプレコン出展製品
フジプレコンの出展製品は、、、スグレーンA!
750kgまでなら何でもすぐに連れます、優れものです。
なんでも連れますが、もともとの開発コンセプトに基いてご説明します。
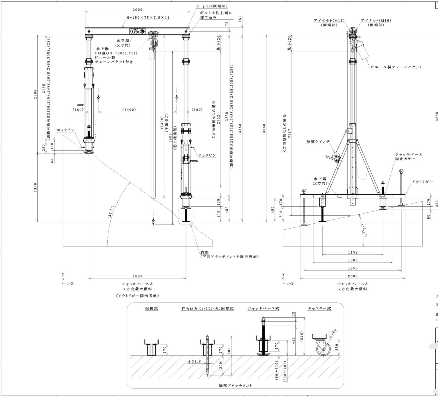
スグレーンA
器具箱の基礎を交換する際、現場でこんなお困りごと、ありませんか???
困1 器具箱の仮移転等が必要なためケーブルを外す必要がある⇒作業が大掛かりになる
困2 クレーン車作業の為に感電リスクがある⇒ブームが当たる恐れがある
困3 停電手配および線路閉鎖等が必要なためほぼ夜間作業⇒働き方改革必要
↓
フジプレコンのスグレーンAで問題解決!!!
解決1 ケーブルを外すことなく器具箱を吊り上げて基礎を交換できます
解決2 決められた高さまでの吊り上げ専用器具なので、感電リスクなしです。
架線に触れる心配ないです
解決3 停電手配と線路閉鎖が不要で昼間作業も可能、
働き方改革になり、なおかつ資格不要で作業者を選びません
スペック
風圧試験もおこないました。
いろいろな使い方
750kgまでなら何でも吊れます!
まとめ
気になる方ぜひ盛岡信通フェアでご覧ください、幕張メッセの鉄道技術展でも出店予定。
実際に吊り上げてみて下さい。
フジプレコンはコンクリートのプロ集団ですが、皆様の作業のお手伝いができる製品を取りそろえるプロでもります。
実際に見に来てください!
藤井雄太郎
最新記事 by 藤井雄太郎 (全て見る)
- 掘削しない根かせのいらないトラフ橋あります - 2026年4月3日
- 第2回鉄道技術展・大阪2026 - 2026年3月6日
- コンクリート勉強会について - 2026年2月6日
関連記事
-
-
オリンピックと高校野球ありがとう。そしてNHKお疲れ様でした。
今日はフジプレコンの酒井です。 今年は観測史上二番目に台風の発生が遅いと言っていましたが
-
-
UEFAチャンピオンズリーグ20-21 ベスト16 1stレグ
こんにちは、ケーブル収納アドバイザーの藤井です。 今回は、UEFAチャンピオンズリーグ20-2
-
-
第64回宝塚記念 2週前予想
こんにちは、ケーブル収納アドバイザーの藤井です。 ダービーは、名前を挙げた4頭のうち、ハーツコ
-
-
はじめましてな食べ物
豊橋工場の濱野です。 冬は太りやすいと言いますが、体が冷え、免疫力も下がり解毒・排出・発汗作用
-
-
大雨時には冠水とアンダーパスには気を付けてガラスを割る道具がありますよ
今日は側溝アドバイザー フジプレコンの酒井です。 今年のお盆休みはほんと雨雨雨でした。高校野球
- PREV
- 可変側溝もオールプレキャストの時代!インバート付の基礎板です。
- NEXT
- 中華屋の定食














